5 locali in vendita

Rieti, Via Torricella In Sabina - Quattro Strade
€ 209.000
5 locali 5 locali
135 Mq 135 Mq
2 bagni 2 bagni

5 locali in vendita

Rieti, Via Torricella In Sabina - Quattro Strade

Descrizione annuncio

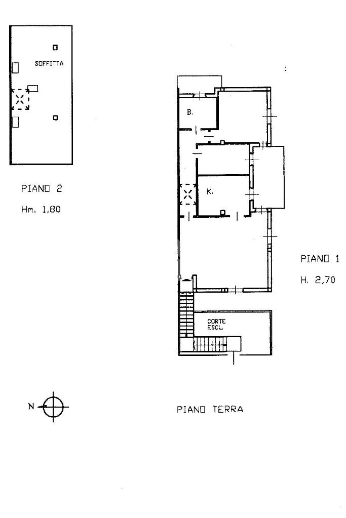
A Rieti, zona Quattrostrade, proponiamo in vendita appartamento con ingresso indipendente di recente costruzione con giardino e garage.
L’immobile misura 135 mq calpestabili, si sviluppa su 2 livelli e si compone di:
ampio soggiorno con camino, cucina abitabile con camino, entrambi con accesso a un balcone, corridoio, 1 camera matrimoniale, 1 cameretta anch’essa con accesso al balcone e 1 bagno con box doccia.
Salendo al 2° piano c’è la mansarda con 2 camere e 1 bagno con vasca.
Completano la proprietà un garage di 17 mq e il giardinetto.
La casa è stata costruita nel 2003 in cemento armato, internamente ha pavimenti in parquet e grès, infissi in alluminio doppio vetro con persiane in alluminio, porte in legno;
Il riscaldamento è autonomo a pavimento e le spese condominiali sono di circa € 60,00 annui.
La posizione è comoda, vicino a tutti i principali servizi del quartiere e a 10 minuti dal centro di Rieti.
Classe: F IPE: 165,34 kwh/mq anno.

Mostra tutto

Nelle vicinanze

Trasporto pubblico Trasporto pubblico
Rieti
Rieti
510 m
Trasporto pubblico
30 m
Viale della Gioventù lato caserma Verdirosi
Viale della Gioventù lato caserma Verdirosi
220 m
Ricariche auto elettriche Ricariche auto elettriche
Rieti Borsellino | Enel X
400 m
Scuole Scuole
Scuola elementare Marconi
80 m
Istituto Tecnico Commerciale Luigi di Savoia Duca Degli Abruzzi
270 m
Sabina Universitas
360 m
Scuole
430 m
Istituto Magistrale Elena Principessa di Napoli
460 m
Farmacia Farmacia
Farmacia Manca
30 m
Farmacia
470 m
Farmacia Maraini
520 m
Farmacia Petrini
570 m
ASM1
580 m
Supermercati Supermercati
Conad
470 m
Todis
690 m
Tigre Amico
710 m
Coop Centro Italia
760 m
Tigre
920 m
Negozi Negozi
Alimentari
300 m
Brums
300 m
Piazza Italia
380 m
Tuttosport
450 m
Paoletto al Corso
490 m
Bar Bar
Crosby
40 m
Bombolo Bar
140 m
Bar dei Platani
340 m
Quattro Stagioni
370 m
Charleston Coffee
390 m
Ristoranti Ristoranti
Il Rugantino
30 m
Pizzeria Il nuovo secolo
60 m
Pizzeria Il Viale
130 m
La Taverna dei Fabbri
140 m
Mabì
220 m
Mostra tutto

Caratteristiche

Rif.:
61120746
Piano:
1 di 2 (Piano basso)
Box:
1
Balconi:
1
Camere da letto:
4
Arredamento:
Assente
Mostra tutto
Prezzo Prezzo
€ 209.000
Rata mutuo Rata mutuo
€ 958 / mese
Spese annue Spese annue
€ 60
Proponi il tuo prezzoProponi il tuo prezzo

Classe Energetica

F
F
F
F
F
F
F
F
F
EP globale non rinnovabile:
165.35 kW h/m² anno
EP globale rinnovabile:
0.00 kW h/m² anno
EP invernale del fabbricato:
EP estiva del fabbricato:
Anno di costruzione:
2003
Riscaldamento:
Autonomo
Tipo impianto:
A pavimento
Tipo alimentazione:
Altro

Ti interessa visionare l'immobile?

Fissa un appuntamento  Fissa un appuntamento

Richiedi informazioni

* Questi campi sono obbligatori

Calcola il tuo mutuo

Semplice e senza impegno
Anticipo

( % )
Mutuo

( % )

pochi semplici passi

inserisci i tuoi dati
Questionario completato
Grazie per aver richiesto un appuntamento senza impegno con un nostro Consulente del Credito e Assicurativo.

Hai inserito correttamente tutti i dati necessari e a breve riceverai una e-mail con un link da convalidare per inviare i tuoi dati.
Affiliato
Grupposabinarieti Srl
Via Salaria per L'Aquila, 1/C 02100 Rieti (RI)

Il nostro staff


  • Mario Lugini
    Affiliato

  • Carla Campanale
    Coordinatrice

  • Alessandro Agostinelli
    Collaboratore

  • Roberto Marino
    Affiliato
Via Salaria per L'Aquila, 1/C 02100 Rieti (RI)
Zona: Rieti-Micioccoli-R.Pacis-M.D. Cuore-Vazia-Quattro Strade-Zona Residenziale
Mostra su mappa
Orari: Lun-Ven : 08.30-13.00/ 15.00-19:30 Sabato: 08.30-17.30 Domenica: chiuso
Affiliato
Grupposabinarieti Srl
Via Salaria per L'Aquila, 1/C 02100 Rieti (RI)

2025 Tecnocasa Franchising S.p.A. - P. IVA 08365160152 - Via Monte Bianco 60/A 20089 Rozzano (MI). Ogni agenzia ha un proprio titolare ed è autonoma. Privacy policy | Policy utilizzo | Cookie policy