Casa semindipendente in vendita

Longone Sabino, Via Reatina - Fassinoro
€ 169.000
23 locali 23 locali
750 Mq 750 Mq
10 bagni 10 bagni

Casa semindipendente in vendita

Longone Sabino, Via Reatina - Fassinoro

Descrizione annuncio

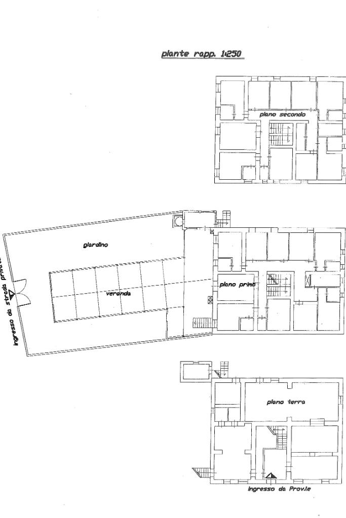
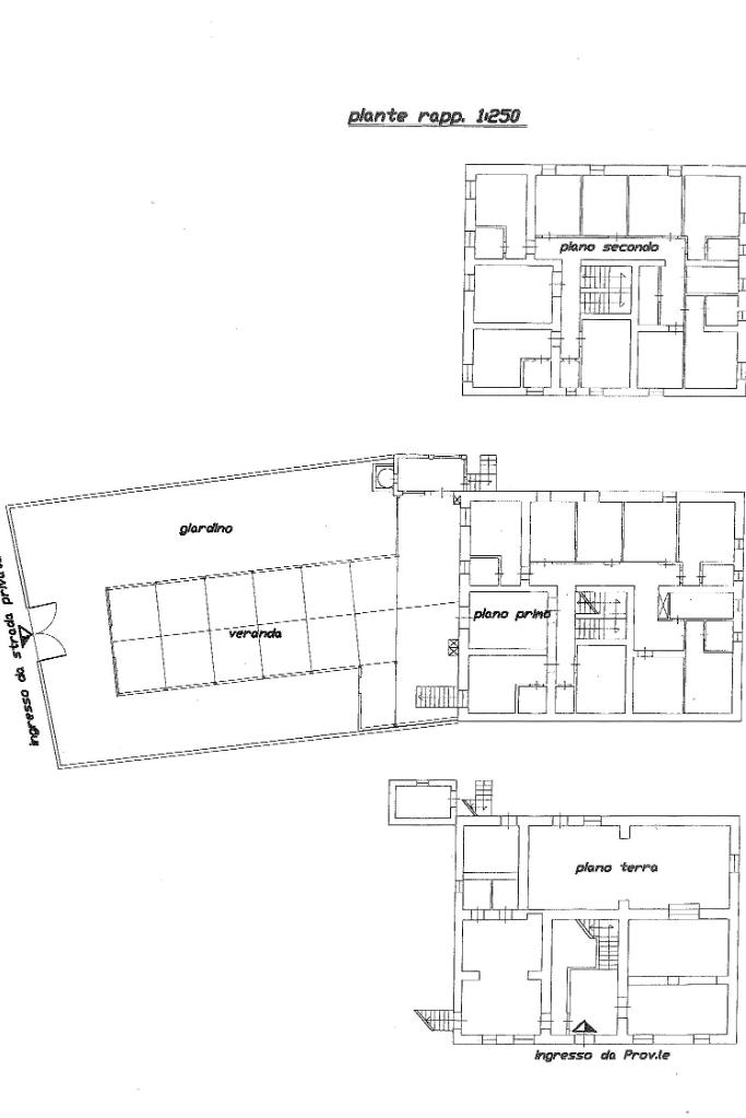
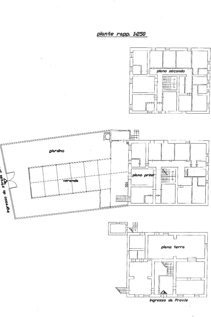
Al centro della Fraz. di Fassinoro, borgo del comune di Longone Sabino (RI), proponiamo in vendita fabbricato di ampia metratura un tempo adibito ad albergo.
La struttura si sviluppa su 3 livelli per una superficie di 580 mq + un’ampia veranda con struttura metallica di circa 170 mq con forno a legna. A completare la proprietà c’è il giardino circostante recintato.
Le camere sono al piano rialzato e al 1° piano, 9 stanze e 5 bagni per ogni piano.
Al piano terra ulteriori locali prima utilizzati come Hall e cucina.
La proprietà è da ristrutturare sia all’interno per quanto riguarda gli impianti, infissi, mattonatura, sia all’esterno; La struttura è in muratura mentre i solai e la recinsione sono in cemento armato.
La costruzione risale a fine ‘800 come residenza di campagna, poi successivamente è stato adibito ad albergo.
Oggi la proprietà ha una categoria catastale F/2, ovvero unità collabente , privo di rendita catastale esente da IMU o tassazioni di altro tipo.
Fassinoro è un piccolo borgo a circa 800 slm, dista circa 12 km da Rieti, 8km dal Lago del Salto e Lago del Turano con i borghi di Colle e Castel di Tora.
Roma dista circa 1 ora e 15 minuti, percorrendo la . Salaria collegata con la A24. E’ presente un Bar e il servizio di trasporto pubblico COTRAL.
Immobile esente da classificazione energetica.

Mostra tutto

Nelle vicinanze

Negozi Negozi
Alimentari
3,0 Km
Ristoranti Ristoranti
Antico Borgo di Vallignano
1,9 Km
Valli Rose
1,9 Km
Mostra tutto

Caratteristiche

Rif.:
61121847
Piano:
Basso di 3
Totale piani:
3
Posti auto:
1
Camere da letto:
18
Arredamento:
Assente
Mostra tutto
Prezzo Prezzo
€ 169.000
Rata mutuo Rata mutuo
€ 797 / mese
Spese annue Spese annue
€ 0
Proponi il tuo prezzoProponi il tuo prezzo

Classe Energetica

Questo immobile è esente da classe energetica
Anno di costruzione:
1890
Riscaldamento:
Autonomo
Tipo impianto:
A radiatori
Tipo alimentazione:
Altro

Ti interessa visionare l'immobile?

Fissa un appuntamento  Fissa un appuntamento

Richiedi informazioni

Clicca su Leggi per aprire l'informativa
* Questi campi sono obbligatori

Calcola il tuo mutuo

Semplice e senza impegno
Anticipo

( % )
Mutuo

( % )

pochi semplici passi

inserisci i tuoi dati
Questionario completato
Grazie per aver richiesto un appuntamento senza impegno con un nostro Consulente del Credito e Assicurativo.

Hai inserito correttamente tutti i dati necessari e a breve riceverai una e-mail con un link da convalidare per inviare i tuoi dati.
Affiliato
Grupposabinarieti Srl
Via Salaria per L'Aquila, 1/C 02100 Rieti (RI)

Il nostro staff


  • Mario Lugini
    Affiliato

  • Carla Campanale
    Coordinatrice

  • Alessandro Agostinelli
    Collaboratore

  • Roberto Marino
    Affiliato
Via Salaria per L'Aquila, 1/C 02100 Rieti (RI)
Zona: Rieti-Micioccoli-R.Pacis-M.D. Cuore-Vazia-Quattro Strade-Zona Residenziale
Mostra su mappa
Orari: Lun-Ven : 08.30-13.00/ 15.30-19:30 Sabato: 08.30-17.30 Domenica: chiuso
Affiliato
Grupposabinarieti Srl
Via Salaria per L'Aquila, 1/C 02100 Rieti (RI)

2025 Tecnocasa Franchising S.p.A. - P. IVA 08365160152 - Via Monte Bianco 60/A 20089 Rozzano (MI). Ogni agenzia ha un proprio titolare ed è autonoma. Privacy policy | Policy utilizzo | Cookie policy