Porzione di bifamiliare in vendita

Cittaducale, Via Don Giovanni Monizzi - Santa Rufina
€ 329.000
7 locali 7 locali
197 Mq 197 Mq
2 bagni 2 bagni

Porzione di bifamiliare in vendita

Cittaducale, Via Don Giovanni Monizzi - Santa Rufina

Descrizione annuncio

Nella tranquilla e riservata Frazione di Santa Rufina, in posizione rialzata e con piacevole apertura sul paesaggio circostante, proponiamo in vendita una soluzione bifamiliare elegante e accogliente, ideale per chi desidera vivere in un contesto sereno senza rinunciare a spazio e indipendenza.

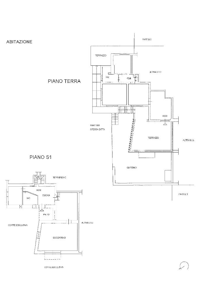
L’abitazione, di circa 197 mq, si sviluppa su due livelli e si distingue per la presenza di un doppio ingresso indipendente: quello carrabile accompagna comodamente al giardino privato e al garage, mentre l’ingresso pedonale garantisce riservatezza e praticità nella vita quotidiana.

Al piano terra la casa accoglie con ambienti ampi e luminosi, pensati per essere vissuti appieno. La cucina, il salone e il soggiorno con camino dialogano armoniosamente tra loro, mentre la grande vetrata affacciata sul giardino crea una continuità naturale tra interno ed esterno, rendendo l’ambiente caldo e conviviale in ogni stagione. Sullo stesso livello trovano spazio anche un bagno con vasca e un comodo ripostiglio.

Salendo al piano superiore, tramite scala a chiocciola, si accede alla zona notte, pensata per garantire comfort e privacy. Qui, prima di accedere alla camera padronale, troviamo un’ampia stanza attualmente adibita a studio, ideale come zona lavoro, angolo lettura o spazio multifunzionale. La camera padronale, impreziosita dal camino, gode di accesso diretto all’ampio terrazzo, perfetto per momenti di relax all’aperto. Completano il piano due camere matrimoniali e un bagno con doccia, funzionale e ben distribuito.

La casa presenta infissi in legno con doppio vetro, porte in legno, pavimenti in ceramica e finestre dotate di griglie decorative di sicurezza, elementi che contribuiscono a creare un’atmosfera calda e allo stesso tempo protetta.

Il giardino privato di circa 750 mq rappresenta uno dei punti di forza della proprietà: è curato e arricchito da numerose piante ornamentali, con recinzioni studiate per garantire un’adeguata schermatura rispetto alla casa confinante, assicurando privacy e tranquillità. Lo spazio esterno è reso ancora più funzionale dalla presenza di un impianto di irrigazione programmabile con pozzo privato, di un piccolo laghetto ornamentale e di un’area conviviale con forno in muratura e barbecue, ideale per momenti di relax e convivialità all’aria aperta.

A completare la proprietà troviamo un garage seminterrato di 28 mq, dotato anche di bagno, comodo sia come rimessa che come spazio accessorio. L’esposizione su tre lati e la posizione dominante assicurano ottima luminosità durante tutta la giornata e una vista aperta e ariosa.

Una casa pensata per essere vissuta, dove spazio, tranquillità e cura dei dettagli si incontrano, ideale per chi cerca un luogo da chiamare davvero casa.

APE: Classe F – IPE 227,88 kWh/m² anno

Mostra tutto

Nelle vicinanze

Trasporto pubblico Trasporto pubblico
Cittaducale
Cittaducale
1,0 Km
Scuole Scuole
Scuola Elementare
290 m
Scuola media Galileo Galilei
470 m
Università degli Studi della Tuscia
690 m
Istituto Professionale di Stato per l'Agricoltura
700 m
Farmacia Farmacia
Farmacia Domenici
680 m
Supermercati Supermercati
CONAD
330 m
Negozi Negozi
Negozi
660 m
Ristoranti Ristoranti
La Torre
300 m
Pasta da Leoni
420 m
La Tagliata
900 m
Mostra tutto

Caratteristiche

Rif.:
61171676
Piano:
2 di 2 (Piano terra con giardino)
Box:
1
Terrazzi:
1
Camere da letto:
3
Arredamento:
Completo
Mostra tutto
Prezzo Prezzo
€ 329.000
Rata mutuo Rata mutuo
€ 1.563 / mese
Spese annue Spese annue
€ 0
Proponi il tuo prezzoProponi il tuo prezzo

Classe Energetica

F
F
F
F
F
F
F
F
F
EP globale non rinnovabile:
227.88 kW h/m² anno
EP globale rinnovabile:
1.96 kW h/m² anno
EP invernale del fabbricato:
EP estiva del fabbricato:
Anno di costruzione:
1970
Riscaldamento:
Autonomo
Tipo impianto:
A radiatori
Tipo alimentazione:
Metano

Ti interessa visionare l'immobile?

Fissa un appuntamento  Fissa un appuntamento

Richiedi informazioni

Clicca su Leggi per aprire l'informativa
* Questi campi sono obbligatori

Calcola il tuo mutuo

Semplice e senza impegno
Anticipo

( % )
Mutuo

( % )

pochi semplici passi

inserisci i tuoi dati
Questionario completato
Grazie per aver richiesto un appuntamento senza impegno con un nostro Consulente del Credito e Assicurativo.

Hai inserito correttamente tutti i dati necessari e a breve riceverai una e-mail con un link da convalidare per inviare i tuoi dati.
Affiliato
Grupposabinarieti Srl
Via Salaria per L'Aquila, 1/C 02100 Rieti (RI)

Il nostro staff


  • Carla Campanale
    Coordinatrice

  • Alessandro Agostinelli
    Collaboratore

  • Roberto Marino
    Affiliato
Via Salaria per L'Aquila, 1/C 02100 Rieti (RI)
Zona: Rieti-Micioccoli-R.Pacis-M.D. Cuore-Vazia-Quattro Strade-Zona Residenziale
Mostra su mappa
Orari: Lun-Ven : 08.30-13.00/ 15.30-19:30 Sabato: 08.30-17.30 Domenica: chiuso
Affiliato
Grupposabinarieti Srl
Via Salaria per L'Aquila, 1/C 02100 Rieti (RI)

2026 Tecnocasa Franchising S.p.A. - P. IVA 08365160152 - Via Monte Bianco 60/A 20089 Rozzano (MI). Ogni agenzia ha un proprio titolare ed è autonoma. Privacy policy | Policy utilizzo | Cookie policy