Bilocale in vendita

Cittaducale, Via delle Mimose - Santa Rufina
€ 69.000
2 locali 2 locali
40 Mq 40 Mq
1 bagno 1 bagno

Bilocale in vendita

Cittaducale, Via delle Mimose - Santa Rufina

Descrizione annuncio

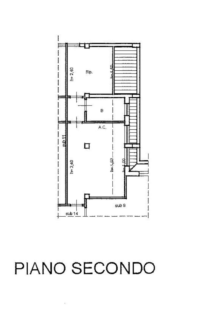
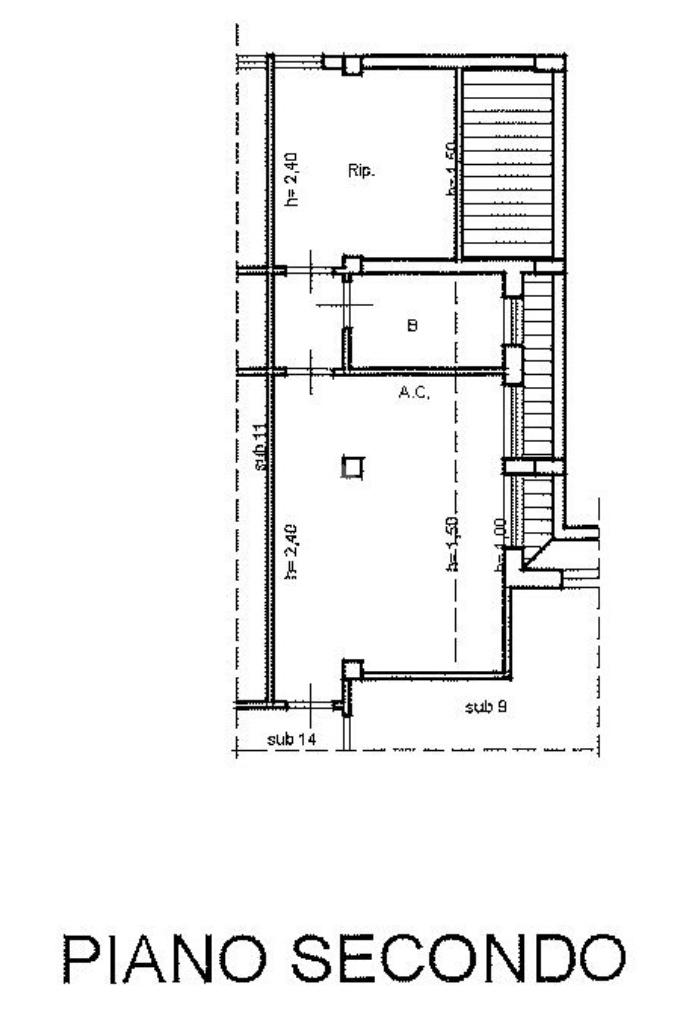
In contesto residenziale tranquillo, proponiamo in vendita appartamento situato al secondo e ultimo piano di una palazzina priva di ascensore, edificata nel 2004.

L’immobile, di circa 40 mq calpestabili, è composto da soggiorno con angolo cottura, una camera da letto mansardata e un bagno con doccia.

L’appartamento si presenta in ottimo stato interno, con pavimenti in gres, infissi in alluminio con doppi vetri e zanzariere e porte in legno.

Il riscaldamento è autonomo, con caldaia a metano e termosifoni.

Le spese condominiali ammontano a circa €25 mensili.

Attualmente l’immobile è locato fino a Settembre 2026 con canone mensile di €400, rendendolo ideale anche come uso investimento.

La posizione è particolarmente strategica: l’abitazione si trova nelle immediate vicinanze dei principali servizi offerti dalla frazione e a soli 10 minuti dal centro di Rieti, dalle aziende locali e dall’Ospedale “San Camillo De Lellis”.

Classe energetica: G

IPE: 341,36 kWh/mq annuo

Mostra tutto

Nelle vicinanze

Trasporto pubblico Trasporto pubblico
Cittaducale
Cittaducale
1,0 Km
Scuole Scuole
Scuola Elementare
290 m
Scuola media Galileo Galilei
470 m
Università degli Studi della Tuscia
690 m
Istituto Professionale di Stato per l'Agricoltura
700 m
Farmacia Farmacia
Farmacia Domenici
680 m
Supermercati Supermercati
CONAD
330 m
Negozi Negozi
Negozi
660 m
Ristoranti Ristoranti
La Torre
300 m
Pasta da Leoni
420 m
La Tagliata
900 m
Mostra tutto

Caratteristiche

Rif.:
61168160
Piano:
2 di 2 (Piano medio)
Camere da letto:
1
Arredamento:
Completo
Condizionamento:
Autonomo
Ascensore:
No
Mostra tutto
Prezzo Prezzo
€ 69.000
Rata mutuo Rata mutuo
€ 328 / mese
Spese annue Spese annue
€ 300
Proponi il tuo prezzoProponi il tuo prezzo

Classe Energetica

G
G
G
G
G
G
G
G
G
EP globale non rinnovabile:
341.36 kW h/m² anno
EP globale rinnovabile:
0.00 kW h/m² anno
EP invernale del fabbricato:
EP estiva del fabbricato:
Anno di costruzione:
2004
Riscaldamento:
Autonomo
Tipo impianto:
A radiatori
Tipo alimentazione:
Metano

Ti interessa visionare l'immobile?

Fissa un appuntamento  Fissa un appuntamento

Richiedi informazioni

Clicca su Leggi per aprire l'informativa
* Questi campi sono obbligatori

Calcola il tuo mutuo

Semplice e senza impegno
Anticipo

( % )
Mutuo

( % )

pochi semplici passi

inserisci i tuoi dati
Questionario completato
Grazie per aver richiesto un appuntamento senza impegno con un nostro Consulente del Credito e Assicurativo.

Hai inserito correttamente tutti i dati necessari e a breve riceverai una e-mail con un link da convalidare per inviare i tuoi dati.
Affiliato
Grupposabinarieti Srl
Via Salaria per L'Aquila, 1/C 02100 Rieti (RI)

Il nostro staff


  • Carla Campanale
    Coordinatrice

  • Alessandro Agostinelli
    Collaboratore

  • Roberto Marino
    Affiliato
Via Salaria per L'Aquila, 1/C 02100 Rieti (RI)
Zona: Rieti-Micioccoli-R.Pacis-M.D. Cuore-Vazia-Quattro Strade-Zona Residenziale
Mostra su mappa
Orari: Lun-Ven : 08.30-13.00/ 15.30-19:30 Sabato: 08.30-17.30 Domenica: chiuso
Affiliato
Grupposabinarieti Srl
Via Salaria per L'Aquila, 1/C 02100 Rieti (RI)

2026 Tecnocasa Franchising S.p.A. - P. IVA 08365160152 - Via Monte Bianco 60/A 20089 Rozzano (MI). Ogni agenzia ha un proprio titolare ed è autonoma. Privacy policy | Policy utilizzo | Cookie policy